Герб МО ГО Сыктывкар
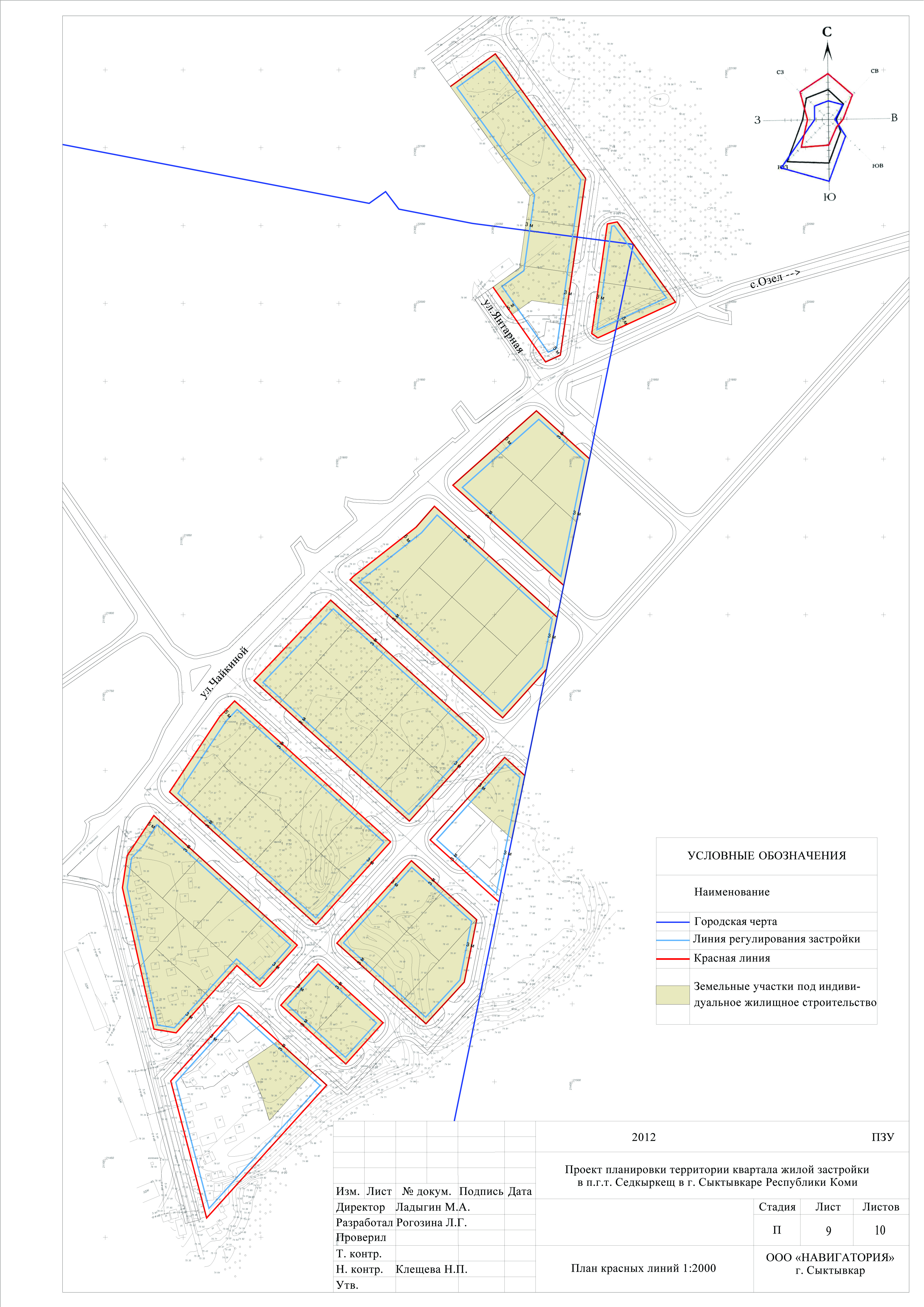
Постановление администрации МО ГО «Сыктывкар» от 05.07.2013 № 7/2638 "Об утверждении проекта планировки территории квартала индивидуальной жилой застройки в п.г.т. Седкыркещ г. Сыктывкара Республики Коми"
Постановление администрации МО ГО «Сыктывкар» от 05.07.2013 № 7/2638 "Об утверждении проекта планировки территории квартала индивидуальной жилой застройки в п.г.т. Седкыркещ г. Сыктывкара Республики Коми"